Existing residential
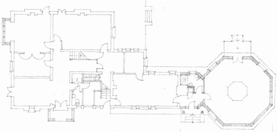
Arthur Road has been an association stretching back over a period of some twelve years. The main house, having stood empty for many years, had been restored. The second phase was to build accommodation for the parents of one of the clients. The original Victorian house had an Edwardian extension to the North. An octagonal building linked by a separate entrance and bathroom was added, to provide a large space providing a combined kitchen and living area opening into the garden beyond. The scale had to respond appropriately to the size of the host building. Different options were considered, and in close collaboration with the client, this solution was adopted.
Since the original project was realized, three further ones have been undertaken between us.


| client | Private client |
|
| structural engineer | George Alexander and Partners |
|
| main contractor | Mustard Seed Building Company |

